Home
 

ProdukterFasaderAluminiumRoyal S 75FF.HI

Royal S 75FF.HI: H�gisolerad f�nsterkonstruktion med fasadkarakt�r

 

F�nsterfasadkonstruktionen Royal S 75FF.HI (High Insulation) erbjuder multifunktionella, vackra och s�kra l�sningar. De �r dessutom h�gisolerade tack vare innovativ isolerteknik.

Systemf�rdelar:


  • H�gisolerat tack vare innovativ isolerteknik
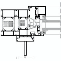
  • Smal synlig bredd p� 50 mm
  • Stora m�jligheter till designvarianter tack vare olika utseende p� ut- och insida.
  • Sl�t yta tack vare nytt ytterskal
  • B�ge med anslag kan monteras
  • Auch in einbruchshemmender Ausf�hrung lieferbar

Serien Royal S 75FF.HI �r optiskt �vertygande tack vare smala synliga breddar. Systemet �r speciellt l�mpat f�r horistonella f�nsterband med fasadkarakt�r. Ett nytt ytskikt g�r att utsidan blir fullkomligt livande. En annan nyhet �r b�gar med anslag.



 

International

 

www.schueco.se

Vill du ha mer information om Sch�cos produkter och tj�nster? Vi hj�lper g�rna till!